21+

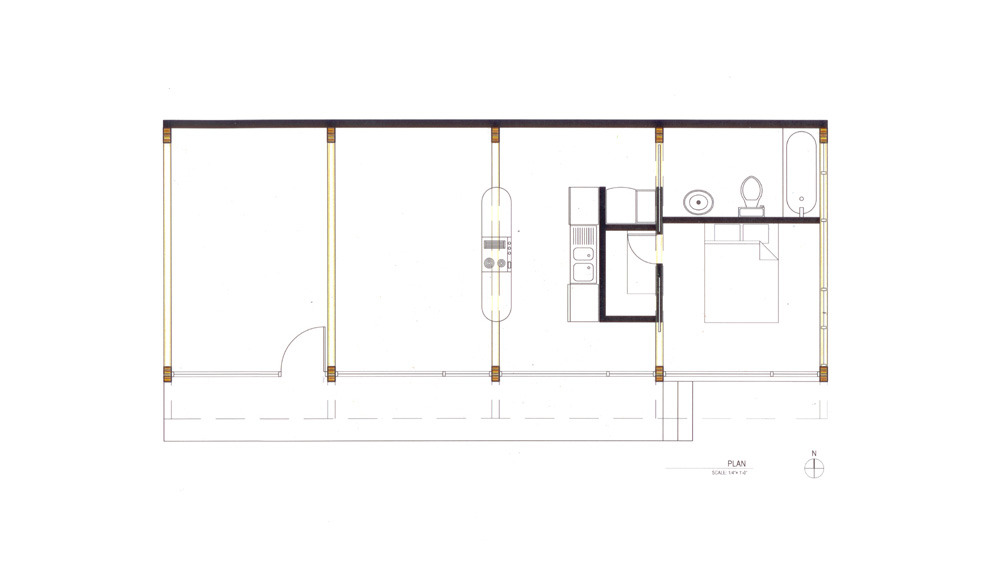
The intention of this modular structure is to provide a sustainable dwelling/ work space for North Americans. The structure's materiality and energy engineering result in a space that makes more energy than it consumes. The unique structural engineering of the building allows for varied placement possibilities: it may be settled onto cleared land, atop an existing building, connected to an abandoned foundation, integrated into urban voids.
materials:
-beetle kill lodgepole pine wood (main frames,interior)
-structurally integrated panels (exterior structural wall system)
-galv-alum t-panels (exterior cladding, roof)
-low-e insulated glazing
energy engineering:
-each proposed site is analyzed for sun/ weather conditions and the 21+ window apertures will be adjusted for peak annual heating and cooling loads for that particular region.
-roof mounted photovoltaic panel array provide 120% of annual electric energy consumption of the 21+. excess energy can then be used for electric car recharge, carbon offset credit, or cash back from regional energy provider.
-thermal infiltration is limited by the 10 inch foam exterior walls and the siting of the architecture.
-heating is provided by in-floor radiant panels.
-cooling is provided through evaporative cooling system.
Made in America: order your 21+ today
Photography: Mike Moore


























































